LODĚNICE U POHOŘELIC

LODĚNICE U POHOŘELIC

LODĚNICE U POHOŘELIC

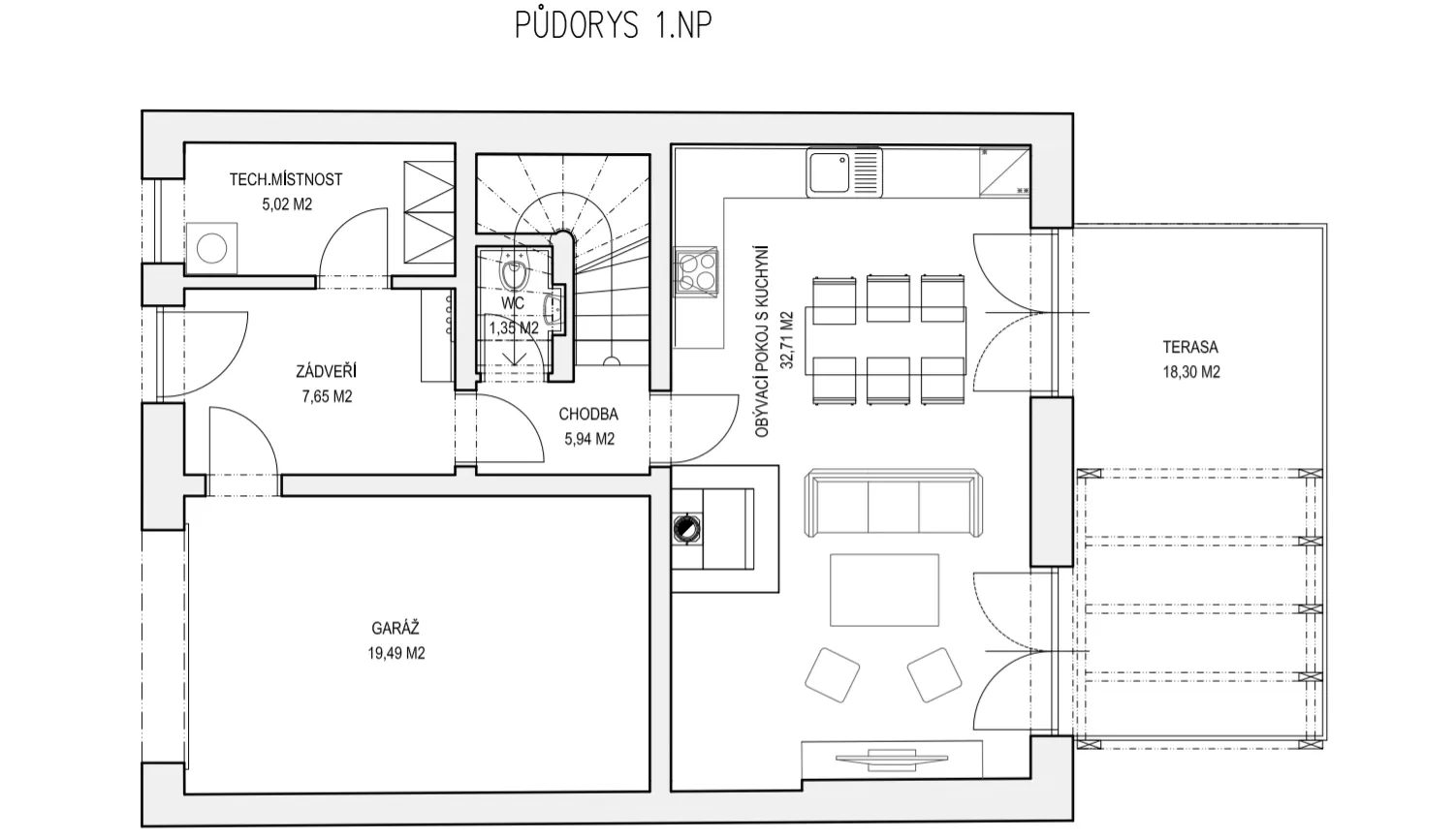
Dispozice: 4+KK
Užitná plocha: 139 m2
Typ nemovitosti: Rodinný dům
K nastěhování: 2021
Označení: Rodinný dům č. 1
Plocha pozemku: 400
Parkování: garáž
Rezervace: Prodáno
Měsíční splátka: 0
Lokalita Loděnice
Typ nemovitosti Rodinný dům
Dispozice 4+kk

cena0 Kč

Poptat nemovitostarrow

  • Loděnice je malá vesnice s poklidným prostředím, 20 minut jižně od Brna. Pokud hledáte cenově dostupné bydlení nedaleko dálnice D52 - Pohořelice -> Brno, je tato lokalita ideální. V obci stavíme 2 rodinné domky s pozemkem 400 m2.

  • Spočítejte si hypotéku na tento dům

  • O produktu

    Loděnice je malá vesnice s poklidným prostředím, 20 minut jižně od Brna. Pokud hledáte cenově dostupné bydlení nedaleko dálnice D52 - Pohořelice -> Brno, je tato lokalita ideální. V obci stavíme 2 rodinné domky s pozemkem 400 m2.

  • Kalkulace

    Spočítejte si hypotéku na tento dům

Produkty banner

Chcete bydlet opravdu po svém?
Je pro vás důležitý interiér a nechcete bydlet jako každý druhý?

V ceně rodinných domů na klíč jsou služby našeho interiérového studia FND Design.

Připravíme pro vás kompletní dokumentaci včetně výběru materiálů, nábytku a obkladů.

 

 

FND designarrow

Zrovna nejsme na telefonu

Naše klientská linka je vám k dispozici každý všední den od 8:00-16:30. Pokud to spěchá napište nám na info@firmanaduveru.cz nebo prosím zavolejte zítra. Vaše FND.

background

POMŮŽEME VÁM SE STAVBOU VAŠEHO VYSNĚNÉHO DOMOVA

Rádi s vámi projdeme každý detail a doporučíme nejvýhodnější řešení

O vaše data je u nás postaráno. Přečtěte si naše podmínky pro zpracování os.údajů

arrow

Nejpozději do 24 hodin se ozveme nazpátek.

FND stavby

phoneIco+420 776 024 188

phoneIcostavby@firmanaduveru.cz

phoneIcoHády 968/2
Maloměřice, 614 00 Brno

Zastavte se u nás v moderních kancelářích na příjemné posezení s důvěrníky a skvělou kávou, kterou si sami pražíme. Rádi vás uvidíme.